Quick-Kontakt-Formular


Bitte beachten Sie unsere Hinweise zum Datenschutz.
52 Tiny Houses am Barther Bodden
Dein Prima Tiny mit Natur, Freiheit und einem Hauch Luxus
Schlüsselfertig
und
sofort nutzbar

Prima Tiny im Prima Resort Boddenblick

Tiny House mit eigenem Grundstück in Groß Kordshagen kaufen

Die ersten Sonnenstrahlen glitzern auf dem Wasser des Barther Boddens und Sie hören das sanfte Rauschen des Windes über den Feldern. Öffnen Sie die Haustür Ihres eigenen kleinen Reichs und genießen Sie den ersten Kaffee mitten in der Natur.

So schön könnte jeder Tag in Ihrem Prima Tiny beginnen. Verwirklichen Sie jetzt Ihren Traum vom eigenen Feriendomizil mit einem Tiny House inklusive Grundstück und Ausstattung.

Mitten im beliebten Prima Resort Boddenblick entstehen 52 clever durchdachte Tiny Houses mit eigenem Grundstück. Komplett ausgestattet, eingerichtet und erschlossen. 

Die gesamte Infrastruktur des Prima Resorts können Sie dabei bequem mitnutzen – von Pool über Sauna und Minimarkt bis Restaurant

Und die herrliche Natur des Barther Boddens liegt in Groß Kordshagen auch direkt vor der Haustür.

Grundstück + Tiny House + Einrichtung gibt es ganz unkompliziert als Komplettpaket

Zum direkt Einziehen, Vermieten oder beides.

Das Projekt im Überblick

  • 52 Prima Tiny Houses mit eigenem Grundstück
  • zwischen Stralsund und Zingst, am Barther Bodden
  • Wohnfläche: ca. 15 m²
  • Grundstück etwa 100 m²
  • komplett möbliert: Küchenzeile, Bad mit Dusche, Wohn- und Schlafbereich
  • Eigennutzung, Ferienvermietung, flexibler Arbeits- und Rückzugsort
  • kurze Lieferzeit, direkt einziehen und / oder vermieten
  • attraktive Steuervorteile
  • mitten im Prima Resort Boddenblick mit Pool, Sauna, Restaurant usw.
  • Kaufpreis: 109.350 € netto

Ein Ort mit Seele zum Ankommen und Anlegen

Die Gemeinde Groß Kordshagen liegt zwischen Stralsund und Zingst ganz nah am Barther Bodden. Das kleine Dorf besteht aus ein paar Höfen, umgeben von Feldern und jeder Menge Natur. Hier spüren Sie die Weite, die Echtheit und die Freiheit am Meer.

Die wunderschönen Lagunen des Barther Boddens, kilometerlange Sandstrände und idyllische Orte – von Ihrem Tiny House im Prima Resort können Sie alles bequem zu Fuß, mit dem Rad, per Boot und Auto erkunden.

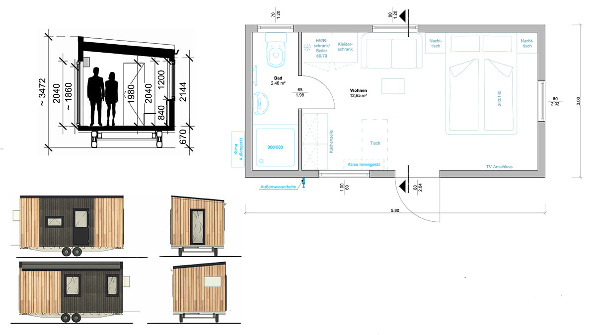
Perfekt durchdachte und clever aufgeteilte Tiny Houses

Auf kompaktem Raum finden Sie eine hochwertige Ausstattung mit:

  • Küchenzeile mit Induktionskochfeld, Kühlschrank u.v.m.
  • modernes Bad mit Walk-In-Dusche, Keramikwaschbecken mit schwarzer Armatur usw.
  • Wohnbereich mit Couchtisch, 2-Sitzer-Sofa mit Schlaffunktion, Kleiderschrank u.v.m.
  • Schlafzimmer: Bett 140 × 200 cm mit gepolstertem Kopfteil, zwei Nachttischen etc.
  • Klimaanlage, moderne Dämmung, Wärmeschutzverglasung
  • komplett eingerichtet und hochwertig ausgestattet
  • Farben und Materialien zum Wohlfühlen
  • Einstieg über mobile Treppe mit Handlauf
  • optional Sockelbereich verkleidet

Jedes der einstöckigen Mobilheime hat die Maße 5,9 m x 3,0 m und eine Wohnfläche von 15 m². Die Basis ist ein robuster Stahl-Transportanhänger mit 12 Stützfüßen. Das ermöglicht eine einfache Standortverlegung und sorgt für eine Statik von 150 kg/m².

Jedes Prima Tiny hat vier Fenster, eine Eingangstür und eine zweifarbige Fassade in Holzoptik. Gemütlich, außergewöhnlich und Ihr eigener liebevoll gestalteter Rückzugsort an der Ostsee!

Grundriss Prima Tiny

Der schönste Platz zum Durchatmen, für Ausflüge in die Natur, für gemeinsame Zeit und für konzentriertes Arbeiten. Ein Tiny House passt perfekt zu allen, die das Wesentliche schätzen.

Ca. 100 m² Grundstück sind direkt mit dabei - Parzellenplan

Bei jedem Prima Tiny ist das Grundstück bereits im Kaufpreis enthalten. Um jedes Grundstück wird eine U-förmige Hecke für noch mehr Privatsphäre angelegt.

Durch die hübschen Tiny Houses und das viele Grün wirkt das gesamte Areal sehr gepflegt und fügt sich harmonisch in das hochwertige Prima Resort ein.

Ihr Grundstück rund um das Prima Tiny auf einen Blick:

  • jeweils ca. 100 m² groß
  • komplett erschlossen: Strom, Wasser, Abwasser, WLAN vorbereitet
  • fester, pflegeleichter und natürlicher Untergrund
  • einmalige Anschlussgebühr von 350, – Euro (netto), im Kaufpreis enthalten

Mit allem Komfort und allen Möglichkeiten - das Prima Resort Boddenblick

Die Tiny Houses liegen mitten im Prima Resort Boddenblick. Als Eigentümer oder Feriengast können Sie die komplette Infrastruktur des neuen Camping- und Ferienhaus-Resorts nutzen:

  • Naturpool mit Sonnenterrasse und Poolbar
  • Sauna und Wellness
  • Restaurant mit Terrasse
  • Bar mit Kamin-Lounge
  • Minimarkt
  • Rezeption mit digitalem Check-in / Check-out
  • Waschmaschinen
  • Kinderspielplatz und Fitnessbereich
  • E-Bikes zum Ausleihen
  • Fitnessraum, Beachvolleyball, Kite-Hotspot am Hafen u.v.m.

Der beliebte Ostseeradweg und der Bodden liegen nur einen Kilometer entfernt.

Makrolage

Groß Kordshagen, zwischen Stralsund und Zingst

Grüne Felder, lange Sandstrände, idyllische Orte und eine 19,4 Quadratkilometer große einzigartige Wasserlandschaft – der Barther Bodden ist ein Naturparadies zwischen Küste und Binnenland. 

Die Lagunengewässer zwischen der Halbinsel Zingst und der Stadt Barth am Festland sind ein wichtiges Brutgebiet für Vögel und eine der faszinierendsten Landschaften Deutschlands. Ihr Prima Tiny ist ein perfekter Ausgangsort für viele einzigartige Naturmomente.

Bodden und Inseln

Das Landschaftsschutzgebiet Vorpommersche Boddenküste, der Nationalpark Vorpommersche Boddenlandschaft mit Barther Bodden, Bodstedter Bodden und dem Zingster Strom und auch die Inseln Kirr, Barther Oie und Hiddensee sind schnell erreichbar.

Sagen und Seefahrt

Die historische Stadt Barth ist nur 10 Kilometer entfernt und bezaubert mit einem der schönsten Häfen im Norden sowie mittelalterlichen Gassen und liebevoll restaurierten Bürgerhäusern.

Karibik an der Ostsee

Das Ostseeheilbad Zingst sorgt für Karibik-Feeling mit 15 Kilometern weißem Sandstrand und türkisblauem Wasser. In dem familienfreundlichen Urlaubsort ist das ganze Jahr über etwas los.

Mikrolage

In dem modernen Camping-Resort ist alles bequem vor Ort

Entfernungen:

  • Bodden – Ostseeradweg: 1 km
  • Barth – Hafen mit Fähre: 10 km
  • Stralsund – Ozeaneum: 20 km
  • Zingst – endloser Strand: 25 km
  • Rostock – City & Shopping: 50 km
  • Berlin – Hauptbahnhof: 260 km
  • A19 – Abfahrt Bentwisch: 1 Std

Warum ist das Prima Tiny an der Ostsee eine gute Investition?

Ferienkapitalanlage am Barther Bodden

  • 52 hübsche Tiny Houses
  • Komplettpaket aus Grundstück + Tiny House + Einrichtung
  • jeweils ca. 100 m² großes, erschlossenes Grundstück
  • traumhafte Lage zwischen Stralsund und Zingst
  • kurze Lieferzeit nach dem Kauf
  • komplett fertig mit: Küchenzeile, Bad mit Dusche, Wohn- und Schlafbereich
  • gesamte Infrastruktur im Prima Resort Boddenblick nutzbar von Pool bis Restaurant

Renditestark und wertbeständig

  • flexibel nutzbar als Feriendomizil, zur Ferienvermietung, als Arbeitsort
  • bewegliches Wirtschaftsgut mit attraktiven Steuervorteilen
  • steuerliche Vorteile für Selbstständige und Privatpersonen
  • direkt einziehen, vermieten oder beides
  • Vermietungsoption über Prima Leben jederzeit zubuchbar
  • direkt ab Übergabe live auf allen Buchungsplattformen
  • Kaufpreis: 109.350 € netto

Preise und Verfügbarkeit

Preise und Verfügbarkeit
für Ihr Tiny House herunterladen
Hier klicken für die aktuelle Preisliste

Kontakt

Ihr Experte für das Projekt Prima Tiny

Marvin Hannebrook von Meine Ferienimmobilie beantwortet Ihnen gerne alle weiteren Fragen zum Projekt Prima Tiny. Er ist überzeugt, dass ein Tiny House Urlaubsgefühl und attraktive Renditechancen ideal miteinander verbindet. Als clevere und moderne Form der eigenen Ferienimmobilie bietet Prima Tiny viele Vorteile:

  • Möglichkeit zur Selbstnutzung oder als reines Investment
  • Immobilien als wertbeständige Geldanlage
  • Steuervorteile und Fördermöglichkeiten
  • Investition in den Wachstumsmarkt Ferienimmobilien


Persönliche Finanzierungsberatung

Sie möchten Ihr neues Prima Tiny am Barther Bodden finanzieren? Sprechen Sie uns gerne an. Wir freuen uns darauf, Sie individuell und unabhängig zu beraten. Über unser Netzwerk profitieren Sie außerdem von Top-Konditionen.

Marvin Hannebrook

Meine Ferienimmobilie GmbH

Marvin Hannebrook

Vertriebsmanagement

Elbchaussee 458 a
22587 Hamburg
  040 - 300 94 93 2
  hannebrook@meine-ferienimmobilie.de

Unterlagen zu diesem Projekt anfordern

Wir haben Ihr Interesse an diesem Projekt geweckt? Gerne senden wir Ihnen die vollständigen Unterlagen zu dieser Ferienimmobilie zu.